Houston Heights

Restoring A House to Its Former Glory


3,775 SF House, 800 SF APT

Historical Renovation, New addition, Garage/Apartment

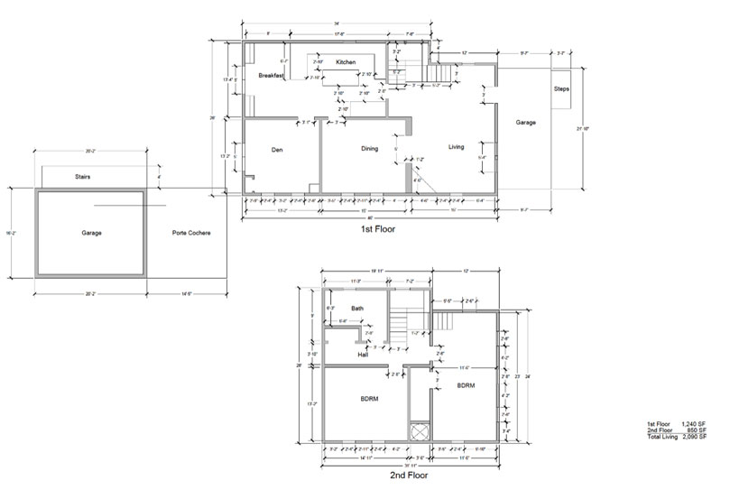
Existing Floor Plan

Original house was about 2,000 SF and had only 2 bedrooms and one (upstairs) bathroom....

View More

Existing Historical House in the Houston Heights

Beautiful 2-bedroom 1 bath historical house is being restored to its former beauty, and being...

View More

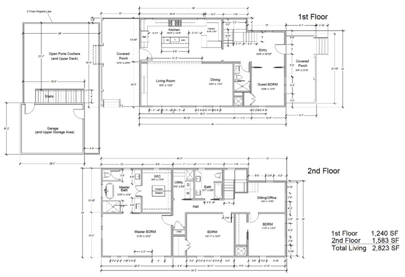
Proposed Floor Plan

The interior of the house will be totally transformed for updated comfort and functionality while...

View More

Proposed Elevations, as approved by the Historical Society of Houston

From the front, the restored house will look identical to its historical image despite the...

View More

Summary–Houston Heights, Historical Restoration

The house was purchased midway through the previous owner’s restoration attempt.  Their vision for the project was completely different and had to be re approved by the Houston Historical Society.  The new plan has been given initial approval and the result will be a grand restoration of an old beauty and a conversion into comfortable, livable house.

The restored and expanded house will be a 4 bedroom house with three full bathrooms, a totally redesigned and open living dining and kitchen area, with a new rear entry (from the alley) porte cochere and garage area with a raised new deck area and space for a swimming pool.  History, beauty, efficiency and functionality in a grand old, yet new, Houston home.

  • "My wife and I would highly recommend Mr. Tim for all your design needs.  He is very creative (even with the limited space of our home), responsive to our request, and very cost conscious."
    - Drew W.
  • “We contacted Tim after Hurricane Harvey when our initial designer quit on us with no notice.  Tim was a life saver! Wish we had gone with him from the start of the project.”
    - Teresa F.
  • “Tim was super easy to work with and always gave us options to choose from. His expertise and professionalism were just what we needed to bring our project to completion.  He worked very quickly and was always responsive to our requests.”
    - Teresa F.
  • “Tim is very knowledgeable and creative and made several great additions to the plan making it look completely different than we thought possible yet giving us what we were looking for.  He also helped us through the City of Houston inspection process which is no easy feat.”
    - Teresa F.
  • “Tim came up with some great options for us to choose from and maximized every inch of our space. He was very fast and responsive to our requests.”
    - Angie Z
  • "We had a great experience with Tim. He was attentive to our conceptual ideas, quick with his design work and created just the space we were looking for in our remodel." 
    - Brook B.
  • “Tim was very easy to work with and professional. He listened to our ideas and quickly produced several options, which enabled us to make our final decision with confidence.”
    - Justin H.
  • “We really loved working with Tim. He made the whole process digestible and un-intimidating for someone who was new to the process.  Discussions were easy and flexible, and he really tried to get an understanding of what we were hoping for combined with his years of expertise knowing what would work. He was thorough and pro-active, and we really benefited from his insight into the planning and design process.”
    - Claire and Chris W.
  • “Tim has a great passion for house design and planning. His creativity and experience enabled our vision to come together into our forever home!” 
    - Melanie L.
  • “Tim came up with some great options for us to choose from and maximized every inch of our space.  He was very fast and responsive to our requests.”
    - Angie Z.
  • “Tim has a great eye for space and was able to give us a design that maximized our existing living space to fit our needs while respecting our budget."
    - Casey R.
  • “What I really liked about Tim was that he was creative, but, at the same time, very cost conscious—he avoided changes than would drive up the cost of the renovation.  In addition, he was not tied to any pre-conceived designs or ideas.  He listened to us and gave us what we wanted.  With all of this he was able to deliver the plans on time and within his original estimate.”
    - Hannah W.
  • “We can't recommend Tim enough for his design services. He took an awkward master suite in our 1960s home and created a beautiful design that took advantage of every inch of space. Tim was extremely responsive throughout the process and provided high quality designs on a fast turnaround. We are so happy with the final space and Tim will be the first person we call if we decide to do additional renovations.” 
    - Katherine R.
  • “Tim was super easy to work with and came up with great options for me to choose from.  We loved how he explained the logic behind the design and helped us make informed decisions about what would work well for our family.”
    - David G.
  • “Tim is not tied to any pre-conceived designs or ideas.  He listened to us and gave us what we wanted. Tim is super easy to work with and provides good feedback and advice on design and layout ideas.”
    - Phil Z.